ВАНАС 550H/3 ЭНТАЛЬПИЧНЫЙ

Товар

662 091  ₽
Пошлина ≈84 778 ₽ не входит в цену.
ВАНАС 550H/3 ЭНТАЛЬПИЧНЫЙ

Доставка

  • Почта России

    Превышен вес Почта (Превышен вес)

  • Курьерская доставка EMS

    Превышен вес EMS (Превышен вес)

Характеристики

Артикул
10852469352
Состояние
Новый
Marka
Wanas
Rodzaj
rekuperator
Waga produktu z opakowaniem jednostkowym
72 kg
Kod producenta
550 H/3
Zakres klas efektywności energetycznej
A+ - G
Klasa efektywności energetycznej
A

Описание

REKUPERATOR WANAS 550H/3 Z WYMIENNIKIEM ENTALPICZNYM

Podana cena zawiera 23% podatku VAT.

Istnieje możliwość naliczenia 8% podatku VAT w przypadku zakupu wraz z usługą montażową.

Wyślij zapytanie ofertowa na zakup całego systemu rekuperacji a otrzymasz najlepszą ofertę na rynku i projekt rekuperacji gratis!!!

OPIS

Rekuperator WANAS 550 H/3 jest to kompaktowa centrala wentylacyjna z poziomym układem króćców służąca do wentylacji domów jednorodzinnych lub obiektów usługowych.

Charakteryzuje się bardzo niskim zużyciem energii, cichą pracą, wysoką sprawnością cieplną oraz łatwą obsługą.

Centrala została zaprojektowana przez zespół inżynierów firmy WANAS i wykonana z dbałością o najdrobniejsze szczegóły, wyposażona w szereg znakomitych funkcji aby mógł cieszyć wysokim komfortem użytkowania.

Przeznaczona jest do wentylowania pomieszczeń o powierzchni do 320 m2.

WANAS 550H/3 ENTALPICZNY

Każdy rekuperator standardowo wyposażony jest w tygodniowy dotykowy sterownik. Dodatkowo do rekuperatora można nabyć moduł WANAS MOBILE CONTROL W-15 lub  WANAS MOBILE CONTROL W-19 Wi-Fi do zdalnego sterowania centralą przez Internet.

WANAS 550H/3 ENTALPICZNY Kod producenta 550 H/3

ZALETY PRODUKTU:

  • Wymiennik z tworzywa o zwiększonej powierzchni wymiany ciepła
  • Bardzo niskie zużycie energii przy 40% mocy wentylatorów centrala wentylacyjna średnio zużywa 35W
  • 3 algorytmy zabezpieczające wymiennik przed zamarzaniem
  • Automatyczna nagrzewnica SMART HEATER - w cenie urządzenia
  • Automatyczny 100% Bypass - w cenie urządzenia
  • Dotykowy, łatwy w obsłudze sterownik - w cenie urządzenia
  • Solidna, niepalna konstrukcja -  brak elementów styropianowych
  • Energooszczędne wentylatory najnowszej generacji
  • Możliwość sterowania centralą wentylacyjną przez Internet
  • Możliwość zastosowania wymiennika entalpicznego

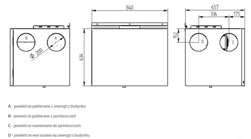
WYMIARY

WANAS 550H/3 ENTALPICZNY Rodzaj rekuperator

PARAMETRY

WANAS 550H/3 ENTALPICZNY Marka Wanas

Гарантии

  • Гарантии

    Мы работаем по договору оферты и предоставляем все необходимые документы.

  • Лёгкий возврат

    Если товар не подошёл или не соответсвует описанию, мы поможем вернуть его.

  • Безопасная оплата

    Банковской картой, электронными деньгами, наличными в офисе или на расчётный счёт.

Отзывы о товаре

Рейтинг товара 0 / 5

0 отзывов

Russian English Polish