WANAS 815 H БАЗОВАЯ ЭНТАЛЬПИЯ

Товар

985 537  ₽
Пошлина ≈128 174 ₽ не входит в цену.
WANAS 815 H БАЗОВАЯ ЭНТАЛЬПИЯ

Доставка

  • Почта России

    Превышен вес Почта (Превышен вес)

  • Курьерская доставка EMS

    Превышен вес EMS (Превышен вес)

Характеристики

Артикул
10861173522
Состояние
Новый
Marka
Wanas
Rodzaj
rekuperator
Waga produktu z opakowaniem jednostkowym
133.5 kg
Kod producenta
Wanas 815H BASIC
Zakres klas efektywności energetycznej
A+ - G
Klasa efektywności energetycznej
A

Описание

REKUPERATOR WANAS 815 H BASIC Z WYMIENNIKIEM ENTALPICZNYM

Podana cena zawiera 23% podatku VAT.

Istnieje możliwość naliczenia 8% podatku VAT w przypadku zakupu wraz z usługą montażową.

Wyślij zapytanie ofertowa na zakup całego systemu rekuperacji a otrzymasz najlepszą ofertę na rynku i projekt rekuperacji gratis!!!

OPIS

Rekuperator WANAS 815 H BASIC to nowoczesna centrala wentylacyjna z poziomym układem króćców służąca do wentylacji domów jednorodzinnych lub obiektów usługowych.

Nowa seria WANAS BASIC to najpotrzebniejsze rozwiązania dla Twojego domu zamknięte w nowoczesnej centrali wentylacyjnej.

Dla zapewnienia pełnego komfortu użytkowania rekuperatory zostały wyposażone w protokół komunikacyjny MODBUS RTU, pozwalający na połączenie rekuperatora z systemem inteligentnego domu. Dzięki dodatkowej opcji zastosowania Modułu internetowego WANAS Mobile Control W-19 Wi-Fi, rekuperator może zostać bezprzewodowo połączony z internetem i obsługiwany zdalnie.

Centrala przeznaczona jest do wentylowania pomieszczeń o powierzchni do 460 m2.

.

WANAS 815 H BASIC ENTALPICZNY

ZALETY PRODUKTU:

  • Wymiennik z tworzywa o zwiększonej powierzchni wymiany ciepła
  • Cicha praca – 7dBA mniej na nawiewie na biegu II
  • 3 algorytmy zabezpieczające wymiennik przed zamarzaniem
  • Inteligentna nagrzewnica wstępna dopasowująca automatycznie swoja moc
  • Protokół komunikacyjny MODBUS
  • Połączenie nie palnych elementów stalowych oraz nowej płyty izolacyjnej - HYBRID SYSTEM
  • Wnętrze i obudowa pomalowane farba poliestrową
  • Nowoczesny sterownik z przednim panelem całym szklanym w standardzie
  • Możliwość zastosowania wymiennika entalpicznego
  • Możliwość sterowania pracą centrali wentylacyjnej przez internet

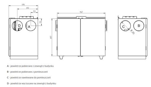
WYMIARY

WANAS 815 H BASIC ENTALPICZNY Marka Wanas

PARAMETRY

WANAS 815 H BASIC ENTALPICZNY Kod producenta Wanas 815H BASIC

Гарантии

  • Гарантии

    Мы работаем по договору оферты и предоставляем все необходимые документы.

  • Лёгкий возврат

    Если товар не подошёл или не соответсвует описанию, мы поможем вернуть его.

  • Безопасная оплата

    Банковской картой, электронными деньгами, наличными в офисе или на расчётный счёт.

Отзывы о товаре

Рейтинг товара 0 / 5

0 отзывов

Russian English Polish