Зал и офис Мурована - Проекты - HH 16/28

Товар

521 015  ₽
Пошлина ≈66 313 ₽ не входит в цену.
Зал и офис Мурована - Проекты - HH 16/28

Доставка

  • Почта России

    от 990 ₽

  • Курьерская доставка EMS

    от 1290 ₽

Характеристики

Артикул
11178009678
Состояние
Новый
Długość
28 m
Szerokość
16 m

Описание

Hala Murowana i Biuro - Projekty - HH 16/28

Opis projektu:

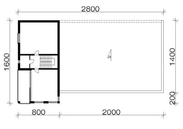
Budynek wysokiej hali /wysokość użytkowa hali 4.5m/ wraz z dwukondygnacyjnym budynkiem biurowo – socjalnym. Prosty, a zarazem nowoczesny budynek biurowy wyróżnia się dużymi przeszkleniami od strony frontowej. Hala została zaprojektowana na rzucie prostokąta, a wnętrze hali można swobodnie aranżować

i dostosować pod dowolną funkcję tj. warsztat, magazyn, auto serwis, halę produkcyjną, itp.

Konstrukcję hali stanowią ściany murowane bez podpór wewnętrznych. Dach drewniany jednospadowy

o kącie nachylenia 5 stopni w technologii wiązarów prefabrykowanych drewnianych MiTek Industries .

Hala ma zaprojektowane wjazdy od strony elewacji frontowej, wymiary bram wjazdowych 3.5m szer./4m wys

Technologia wykonania

Konstrukcja budynku: konstrukcja tradycyjna murowana

Ściany zewnętrzne: pustak ceramiczny 29 cm + styropian 10 cm

Konstrukcja dachu: wiązar prefabrykowany drewniany w technologii MiTek Industries

Dach pokryty: blachą trapezową

Kąt nachylenia dachu:

Projekt dostosowany do: I, II, III strefy wiatrowej i śniegowej

Typ: projekt hali z biurowcem, projekt hali nowoczesnej, hala z dachem jednospadowym, projekt hali

z dźwigarem drewnianym, projekt hali murowanej, budynek handlowy, projekt hali z biurowcem, budynek magazynowy, projekty gotowe hal, gotowe hale murowane, wiaty murowane, projekty budynków murowanych,

___________________________________________________________

Zawartość projektu zgodna z nowelizacją prawa budowlanego:

PROJEKT ARCHITEKTONICZNO-BUDOWLANY (3 EGZ.):

- projekt architektoniczny budowlany

PROJEKT TECHNICZNY (1 EGZ.):

Projekt budowlany - architektura

- opis techniczny

- elewacje

- rzut parteru

- rzut piętra

- rzut dachu

- przekroje

- zestawienie stolarki i ślusarki

Projekt budowlany - konstrukcja

- opis techniczny

- obliczenia

- rzut fundamentów,

- zbrojenie ław i stóp fundamentowych

- elementy żelbetowe - słupy, wieńce, nadproża, stropy

- rzut dachu - schemat montażu konstrukcji dachu

- dźwigar prefabrykowany drewniany

_________________________________________________________________________________________________________________

OFERUJEMY GOTOWE PROJEKTY HAL, WIAT, BIUROWCÓW O RÓŻNYCH ROZPIĘTOŚCIACH : 6,7,8,9,10,11,12,13,,14,15,16,17,18,19,20

WYKONUJEMY PROJEKTY O DOWOLNYM KĄCIE DACHU, WYSOKOŚCI, DŁUGOŚCI.

DOKUMENTACJA PROJEKTOWA JEST ZGODNA Z NOWELIZACJĄ PRAWA BUDOWLANEGO.

POSIADAMY W OFERCIE GOTOWE SYSTEMOWE HALE STALOWE OBUDOWANE PŁYTAMI WARSTWOWYMI / BLACHĄ TRAPEZOWĄ, HALE STALOWE Z WYPEŁNIENIEM MUROWANYM ORAZ TRADYCYJNE HALE MUROWANE

Zaprojektujemy każdą halę, biurowiec, magazyn o dowolnych wymiarach dostosowany do lokalnych warunków zabudowy i strefy obciążenia śniegiem i wiatrem.

Гарантии

  • Гарантии

    Мы работаем по договору оферты и предоставляем все необходимые документы.

  • Лёгкий возврат

    Если товар не подошёл или не соответсвует описанию, мы поможем вернуть его.

  • Безопасная оплата

    Банковской картой, электронными деньгами, наличными в офисе или на расчётный счёт.

Отзывы о товаре

Рейтинг товара 0 / 5

0 отзывов

Russian English Polish