Водосборник Ø 50/50 RAL8019 темно-коричневый

Товар

2 780  ₽
Водосборник Ø 50/50 RAL8019 темно-коричневый

Доставка

  • Почта России

    от 990 ₽

  • Курьерская доставка EMS

    от 1290 ₽

Характеристики

Артикул
11874301187
Состояние
Новый
Rodzaj
Złączka
Średnica
80 mm

Описание

Łapacz wody deszczowej Ø 50/50 RAL8019 brąz ciemny Kod producenta DGV029668GA
Łapacz wody deszczowej Ø 50/50 RAL8019 brąz ciemny

NOWOŚĆ 2022 !

Łapacz wody deszczowej z dachu o średnicy Ø 50/50 mm to innowacyjny produkt firmy  GAMART S.A.

KOLOR: 8019-G (ciemny brąz)

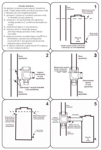
Przeznaczony jest do przechwytywania wody deszczowej z rury spustowej rynny o średnicy Ø50 mm. W górną część łapacza wsuwamy rurę spustową Ø 50mm podobnie przy wylocie.

Zbieracz wody deszczowej Gamart:

  • posiada bardzo prostą konstrukcję
  • działa w pełni automatycznie
  • zabezpiecza przed przelaniem wody w zbiorniku, nawet przy intensywnych opadach deszczu

W momencie, gdy zbiornik na wodę napełni się do maksymalnego poziomu, nadmiar wody deszczowej zostaje odprowadzony rurą spustową do studzienki lub wylewki.

Specyfikacja techniczna:

  • średnica zewnętrzna rury spustowej: 50 mm
  • średnica odpływu bocznego 50 mm
  • gumowa uszczelka 63/50 mm (w komplecie z łapaczem)
  • kąt 90°
  • kolor: 8019-G (ciemny brąz)

Odzyskiwacz wody deszczowej można bez problemu zamontować zarówno do istniejącej rury spustowej, jak i w trakcie montażu nowego systemu rynnowego. Połączenie łapacza ze zbiornikiem na deszczówkę jest bardzo proste. Można je wykonać przy użyciu węża PVC lub rury o średnicy zewnętrznej Ø50 mm.

W celu ochrony przed przedostawaniem się liści i uniknięcia okresowego czyszczenia łapacza, zalecane jest zamontowanie w leju spustowym - kosza rynnowego lub rewizji z sitkiem (nad łapaczem).

Główne zalety zastosowania łapacza wody deszczowej marki Gamart:

  • najwyższa skuteczność gromadzenia wody w porównaniu do innych rozwiązań będących na rynku, szczególnie przy niewielkich opadach deszczu
  • użycie łapacza umożliwia wyłapanie nawet do 100% wody deszczowej z dachu, co uzależnione jest od wielkości zbiornika
  • magazynowanie wody deszczowej zmniejsza wydatki na wody wodociągową
  • możliwość zwolnienia od płacenia planowanego podatku od odprowadzania wody deszczowej
Łapacz wody deszczowej Ø 50/50 RAL8019 brąz ciemny
Łapacz wody deszczowej Ø 50/50 RAL8019 brąz ciemny Rodzaj Złączka
Łapacz wody deszczowej Ø 50/50 RAL8019 brąz ciemny Kolor brązowy
Łapacz wody deszczowej Ø 50/50 RAL8019 brąz ciemny Marka Gamart
  • łapacz Gamart nie wymaga demontażu na zimę - jest odporny na mróz i skrajnie niskie temperatury
  • wykonany z najwyższej jakości materiałów PVC

Zasada działania łapacza wody opadowej.

  1. Łapacz jest montowany na rurze spustowej systemu rynnowego.
  2. Podczas opadów deszczu łapacz wyłapuje wodę i dostarcza ją do zbiornika, do momentu osiągnięcia maksymalnego poziomu.
  3. Po osiągnięciu maksymalnego poziomu wody w zbiorniku, dopływ wody do zbiornika zostaje odcięty, a spływająca woda dalej jest transportowana rurą spustową do kanalizacji burzowej, zbiornika podziemnego, studzienki chłonnej lub rozsączana do gruntu.
Łapacz wody deszczowej Ø 50/50 RAL8019 brąz ciemny
Alt
Łapacz wody deszczowej Ø 50/50 RAL8019 brąz ciemny Średnica 80 mm

apraszamy do obejrzenia prezentacji naszego łapacza na YouTube.

    Гарантии

    • Гарантии

      Мы работаем по договору оферты и предоставляем все необходимые документы.

    • Лёгкий возврат

      Если товар не подошёл или не соответсвует описанию, мы поможем вернуть его.

    • Безопасная оплата

      Банковской картой, электронными деньгами, наличными в офисе или на расчётный счёт.

    Отзывы о товаре

    Рейтинг товара 4.97 / 5

    58 отзывов

    Russian English Polish