GS21H ДВУСТАН ГАРАЖ. В ТЕХНОЛОГИИ СКЕЛЕТ.

Товар

33 772  ₽
Пошлина ≈880 ₽ не входит в цену.
GS21H ДВУСТАН ГАРАЖ. В ТЕХНОЛОГИИ СКЕЛЕТ.

Доставка

  • Почта России

    от 990 ₽

  • Курьерская доставка EMS

    от 1290 ₽

Характеристики

Артикул
13979043743
Состояние
Новый
Długość
7.62 m
Spad dachu
dach dwuspadowy
Liczba bram
2
Szerokość
9.34 m
Stan opakowania
oryginalne
Wysokość wjazdu
3 m
Informacje dodatkowe
dodatkowe drzwi wejściowe
Sposób otwierania bramy
brama podnoszona
Wysokość całkowita z przodu
3.43 m

Описание

GARAŻ DWUSTANOWISKOWY GS21H w technologii szkieletowej

Dostępne wersje projektu:

- wersja podstawowa lub odbicie lustrzane

- budynek garażowy lub budynek gospodarczy

(w uwagach przy zamówieniu proszę podać wybraną wersję budynku oraz przeznaczenie)

  • Projekt w nowej formie 3+3. Zgodnie ze zmianą w Prawie Budowlanym 2021,  w skład dokumentacji wchodzą 3 egzemplarze projektu architektoniczno-budowlanego oraz 3 egzemplarze projektu technicznego.
  • Darmowa wysyłka projektu.
  • Wymiana projektu do 120 dni
  • Bezpłatna zgoda na zmiany w projekcie

DANE TECHNICZNE BUDYNKU:

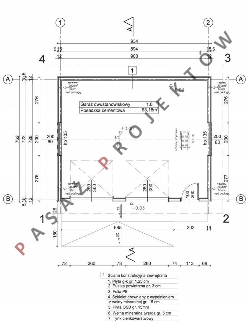
POWIERZCHNIA GARAŻU:                                                                                          63,18 m2

POWIERZCHNIA PODŁÓG                                                                                          126,36 m2

POWIERZCHNIA ZABUDOWY                                                                                      71,20 m2

POWIERZCHNIA CAŁKOWITA                                                                                    142,40 m2

KUBATURA                                                                                                                   379,66 m3

WYSOKOŚĆ BUDYNKU                                                                                                  6,74 m

KĄT NACHYLENIA DACHU                                                                                                  35°

WYMIARY BUDYNKU (szerokość x długość)                                                   9,34 m x 7,62 m

MINIMALNE WYMIARY DZIAŁKI (szerokość x długość)                              17,34 m x 14,62 m

KONSTRUKCJA I ZASTOSOWANE MATERIAŁY:

- fundamenty - ława żelbetowa

- ściany fundamentowe - wylewane betonowe lub pustaki zasypowe gr 24 cm

- ściany nadziemia - szkielet drewniany

- strop  - drewniany

- dach - dwuspadowy symetryczny, więźba drewniana, pokrycie blachodachówką

PROGRAM FUNKCJONALNO-UŻYTKOWY:

Przykryty dachem dwuspadowym budynek posiada prostą zwartą bryłę łatwą i tanią w budowie i użytkowaniu.

Garaż z nowoczesną linią kolorystyczną , dachówką w kolorze antracytu, główną bryłą budynku w białym kolorze z wyraźnie odcinają się na jej tle ciemnoszarą stolarką okienną i drzwiową z pewnością wpasuje się do każdego rodzaju krajobrazu i zabudowy.

Na frontowej ścianie garażu umieszczono dwie wysokie bramy garażowe o wymiarach 2,6x3,0 m oraz dodatkowe drzwi wejściowe do części gospodarczej garażu

Wnętrze stanowi jedno naturalnie doświetlone pomieszczenie garażowe wraz z częścią gospodarczą.

W części garażowej znajdują się miejsca parkingowe na dwa auta na dwa auta, natomiast część gospodarcza może służyć do przechowywania narzędzi ogrodowych, sprzętu sportowego lub  jako kącik do majsterkowania.

W budynku nie zabrakło miejsca na regały służące do przechowywania niezbędnych przy użytkowaniu auta akcesoriów oraz mniejszych narzędzi.

Na poddasze nie użytkowe dostać się można za pomocą schodów składanych.

Jeżeli spodobał się Państwu projekt garażu,  jednak nie do końca odpowiada Wam jakiś parametr np. szerokość, długość, wysokość itp. - my wykonamy dla Was projekt ze zmianą w konkurencyjnej cenie.

Uwaga! Ze względu na bardzo duże zainteresowanie,  możliwość wykonania przez nasze biuro zmian w projektach, nie znajduje się w stałej ofercie!

GS21H GARAŻ DWUSTAN. W TECHNOLOGII SZKIELET.
GS21H GARAŻ DWUSTAN. W TECHNOLOGII SZKIELET. Kod producenta GS21H
GS21H GARAŻ DWUSTAN. W TECHNOLOGII SZKIELET. Marka inna
GS21H GARAŻ DWUSTAN. W TECHNOLOGII SZKIELET. Szerokość 9.34 m
GS21H GARAŻ DWUSTAN. W TECHNOLOGII SZKIELET. Długość 7.62 m
GS21H GARAŻ DWUSTAN. W TECHNOLOGII SZKIELET. Stan opakowania oryginalne
GS21H GARAŻ DWUSTAN. W TECHNOLOGII SZKIELET. Spad dachu dach dwuspadowy

Гарантии

  • Гарантии

    Мы работаем по договору оферты и предоставляем все необходимые документы.

  • Лёгкий возврат

    Если товар не подошёл или не соответсвует описанию, мы поможем вернуть его.

  • Безопасная оплата

    Банковской картой, электронными деньгами, наличными в офисе или на расчётный счёт.

Отзывы о товаре

Рейтинг товара 0 / 5

0 отзывов

Russian English Polish