ХОЗЯЙСТВЕННОЕ ЗДАНИЕ G6

Товар

30 403  ₽
Пошлина ≈482 ₽ не входит в цену.
ХОЗЯЙСТВЕННОЕ ЗДАНИЕ G6

Доставка

  • Почта России

    от 990 ₽

  • Курьерская доставка EMS

    от 1290 ₽

Характеристики

Артикул
14342332903
Состояние
Новый
Długość
7 m
Spad dachu
dach dwuspadowy
Liczba bram
1
Szerokość
10 m
Stan opakowania
oryginalne
Wysokość wjazdu
2.2 m
Materiał wykonania
inny
Informacje dodatkowe
dodatkowe drzwi wejściowe
Sposób otwierania bramy
brama podnoszona
Wysokość całkowita z przodu
3.31 m

Описание

BUDYNEK GOSPODARCZY G6  - (dostępny również w wersji odbicia lustrzanego)

Dostępne wersje projektu:

- wersja podstawowa lub odbicie lustrzane

- budynek garażowy lub budynek gospodarczy

- strop drewniany, żelbetowy lub w systemie RECTOR (kliknij po wycenę stropu RECTOR)

(w uwagach przy zamówieniu proszę podać wybraną wersję budynku, przeznaczenie oraz rodzaj stropu)

  • Projekt w nowej formie 3+3. Zgodnie ze zmianą w Prawie Budowlanym 2021,  w skład dokumentacji wchodzą 3 egzemplarze projektu architektoniczno-budowlanego oraz 3 egzemplarze projektu technicznego.

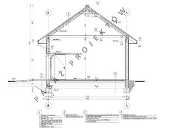
DANE TECHNICZNE BUDYNKU:

POWIERZCHNIA BUDYNKU GOSPODARCZEGO:                                                    60,48 m2

POWIERZCHNIA PODŁÓG                                                                                          120,96 m2

POWIERZCHNIA ZABUDOWY                                                                                    70,00 m2

POWIERZCHNIA CAŁKOWITA                                                                                 140,00 m2

KUBATURA                                                                                                                 367,10 m3

WYSOKOŚĆ BUDYNKU                                                                                                  6,29 m

KĄT NACHYLENIA DACHU                                                                                                  35°

WYMIARY BUDYNKU (szerokość x długość)                                                   10,00 m x 7,00 m

MINIMALNE WYMIARY DZIAŁKI (szerokość x długość)                                18,00 m x 14,20 m

KONSTRUKCJA I ZASTOSOWANE MATERIAŁY:

- fundamenty- ława żelbetowa

- ściany fundamentowe- bloczki betonowe lub pustaki zasypowe gr 24 cm

- ściany nadziemia- Porotherm lub beton komórkowy gr 24 cm

- strop - drewniany belkowy, żelbetowy monolityczny lub w systemie RECTOR(kliknij po wycenę stropu RECTOR) (w uwagach przy zamówieniu należy wpisać wybrany rodzaj stropu)

- dach- dwuspadowy symetryczny, więźba drewniana, pokrycie dachówką ceramiczną

PROGRAM FUNKCJONALNO-UŻYTKOWY:

Przykryty dachem dwuspadowym budynek posiada prostą zwartą bryłę łatwą i tanią w budowie i użytkowaniu. Utrzymany w kolorystyce nowoczesnego designu z tradycyjnymi elementami widocznej więźby dachowej garaż z pewnością wpasuje się do każdego rodzaju krajobrazu i zabudowy. Na frontowej ścianie budynku umieszczono jedną, szeroką bramę oraz okno doświetlające lewą część wnętrza. Na bocznej elewacji z lewej strony zlokalizowano dodatkowe drzwi wejściowe, natomiast na elewacji prawej dwa duże okna. Wnętrze stanowi jedno naturalnie doświetlone, przestronne pomieszczenie do przechowywania różnego rodzaju sprzętu. Z powodzeniem można tam przechowywać wszystkie narzędzia, urządzenia i środki niezbędne do utrzymania domu i pielęgnacji ogrodu. Miejsce to sprawdzi się doskonale również jako kącik do majsterkowania. Na poddasze nieużytkowe można się dostać poprzez drewniane schody składane. Po adaptacji stryszku możemy uzyskać sporo dodatkowej przestrzeni do przechowywania lżejszych przedmiotów.

Jeżeli spodobał się Państwu projekt garażu,  jednak nie do końca odpowiada Wam jakiś parametr np. szerokość, długość, wysokość itp. - my wykonamy dla Was projekt ze zmianą w konkurencyjnej cenie.

Uwaga! Ze względu na bardzo duże zainteresowanie,  możliwość wykonania przez nasze biuro zmian w projektach, nie znajduje się w stałej ofercie!

BUDYNEK GOSPODARCZY G6
BUDYNEK GOSPODARCZY G6 Kod producenta G6
BUDYNEK GOSPODARCZY G6 Marka inna
BUDYNEK GOSPODARCZY G6 Szerokość 10 m
BUDYNEK GOSPODARCZY G6 Długość 7 m
BUDYNEK GOSPODARCZY G6 Stan opakowania oryginalne
BUDYNEK GOSPODARCZY G6 Materiał wykonania inny

Гарантии

  • Гарантии

    Мы работаем по договору оферты и предоставляем все необходимые документы.

  • Лёгкий возврат

    Если товар не подошёл или не соответсвует описанию, мы поможем вернуть его.

  • Безопасная оплата

    Банковской картой, электронными деньгами, наличными в офисе или на расчётный счёт.

Отзывы о товаре

Рейтинг товара 0 / 5

0 отзывов

Russian English Polish