ГАРАЖ НА ОДНУЮ АВТОМОБИЛЬНОСТЬ GJ2

Товар

29 825  ₽
Пошлина ≈374 ₽ не входит в цену.
ГАРАЖ НА ОДНУЮ АВТОМОБИЛЬНОСТЬ GJ2

Доставка

  • Почта России

    от 990 ₽

  • Курьерская доставка EMS

    от 1290 ₽

Характеристики

Артикул
14343529161
Состояние
Новый
Długość
6.5 m
Spad dachu
spad do tyłu lub przodu
Liczba bram
1
Szerokość
11.5 m
Stan opakowania
oryginalne
Wysokość wjazdu
3 m
Materiał wykonania
inny
Informacje dodatkowe
dodatkowe drzwi wejściowe
Sposób otwierania bramy
brama podnoszona
Wysokość całkowita z przodu
4.56 m

Описание

GARAŻ JEDNOSTANOWISKOWY GJ2

Dostępne wersje projektu:

- wersja podstawowa lub odbicie lustrzane

- budynek garażowy lub budynek gospodarczy

(w uwagach przy zamówieniu proszę podać wybraną wersję budynku oraz przeznaczenie)

  • Projekt w nowej formie 3+3. Zgodnie ze zmianą w Prawie Budowlanym 2021,  w skład dokumentacji wchodzą 3 egzemplarze projektu architektoniczno-budowlanego oraz 3 egzemplarze projektu technicznego.

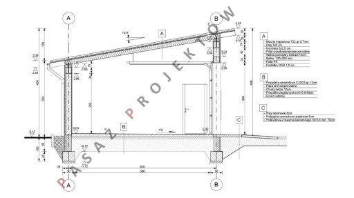
DANE TECHNICZNE BUDYNKU:

POWIERZCHNIA BUDYNKU:                                                                                     62,92 m2

POWIERZCHNIA PODŁÓG                                                                                          62,92 m2

POWIERZCHNIA ZABUDOWY                                                                                    74,75 m2

POWIERZCHNIA CAŁKOWITA                                                                                   74,75 m2

KUBATURA                                                                                                                   289,80 m3

WYSOKOŚĆ BUDYNKU                                                                                                    4,56 m

KĄT NACHYLENIA DACHU                                                                                                  10°

WYMIARY BUDYNKU(szerokość x długość)                                                     11,50 m x 6,50 m

MINIMALNE WYMIARY DZIAŁKI (szerokość x długość)                                 18,50 m x 13,50 m

KONSTRUKCJA I ZASTOSOWANE MATERIAŁY:

- fundamenty- ława żelbetowa

- ściany fundamentowe- bloczki betonowe lub pustaki zasypowe gr 24 cm

- ściany nadziemia- Beton komórkowy gr 24 cm

- stropodach - drewniany belkowy lub w systemie RECTOR (kliknij po wycenę stropu RECTOR), pokrycie - blacha trapezowa T22

PROGRAM FUNKCJONALNO-UŻYTKOWY:

Garaż jednostanowiskowy GJ2 został zaprojektowany na rzucie prostokąta 11,5x6,5m oraz przykryty dachem jednospadowym.

Wnętrze budynku stanową trzy pomieszczenia gospodarcze, z czego dwa większe doświetlone są światłem naturalnym.

Największe z pomieszczeń to garaż jednostanowiskowy.

Dwa mniejsze to pomieszczenia gospodarcze.

W zależności od potrzeb mogą służyć do przechowywania narzędzi ogrodowych, sprzętu sportowego lub jako kącik do majsterkowania.

W budynku zaprojektowano jedną dużą bramę do części garażowej oraz standardowe drzwi wejściowe.

Główną zaletą budynku jest jego nie skomplikowana konstrukcja oraz zastosowane tanie rozwiązania materiałowe.

Drewniana konstrukcja dachu, pokrycie blachą trapezową oraz ograniczenie elementów żelbetowych to znaczna oszczędność w roboczogodzinach oraz cenach materiałów budowlanych.

Budynek dzięki układowi pomieszczeń można z łatwością adaptować na potrzeby małej działalności , np. warsztatu samochodowego.

Jeżeli spodobał się Państwu projekt garażu,  jednak nie do końca odpowiada Wam jakiś parametr np. szerokość, długość, wysokość itp. - my wykonamy dla Was projekt ze zmianą w konkurencyjnej cenie.

Uwaga! Ze względu na bardzo duże zainteresowanie,  możliwość wykonania przez nasze biuro zmian w projektach, nie znajduje się w stałej ofercie!

GARAŻ JEDNOSTANOWISKOWY GJ2
GARAŻ JEDNOSTANOWISKOWY GJ2 Kod producenta GJ2
GARAŻ JEDNOSTANOWISKOWY GJ2 Marka inna
GARAŻ JEDNOSTANOWISKOWY GJ2 Szerokość 11.5 m
GARAŻ JEDNOSTANOWISKOWY GJ2 Długość 6.5 m
GARAŻ JEDNOSTANOWISKOWY GJ2 Stan opakowania oryginalne
GARAŻ JEDNOSTANOWISKOWY GJ2 Materiał wykonania inny

Гарантии

  • Гарантии

    Мы работаем по договору оферты и предоставляем все необходимые документы.

  • Лёгкий возврат

    Если товар не подошёл или не соответсвует описанию, мы поможем вернуть его.

  • Безопасная оплата

    Банковской картой, электронными деньгами, наличными в офисе или на расчётный счёт.

Отзывы о товаре

Рейтинг товара 0 / 5

0 отзывов

Russian English Polish