Doświetlacz piwniczny MEA MULTINORM 100x60x40

Товар

33 825  ₽
Пошлина ≈234 ₽ не входит в цену.
Doświetlacz piwniczny MEA MULTINORM 100x60x40

Доставка

  • Почта России

    от 990 ₽

  • Курьерская доставка EMS

    от 1290 ₽

Характеристики

Артикул
14427645708
Состояние
Новый
Rodzaj
inny

Описание

Doświetlacz piwniczny MULTINORM 3w1    100x60x40

z rusztem kratowym 30/30

Doświetlacz piwniczny MEA MULTINORM 100x60x40

OPIS PRODUKTU

Doświetlacze piwniczne to bardzo korzystne rozwiązanie techniczne pozwalające na doświetlenie pomieszczeń piwnicznych. Przy pomocy doświetlacza można optycznie powiększyć przestrzeń oraz stworzyć warunki do nowych możliwości adaptacji piwnicy.

Nowa generacja doświetlaczy Multinorm 3 w 1 - uniwersalne, wzmocnione i wodoszczelne. Doświetlacze dostępne w dwóch głębokościach : 40 cm i 60 cm.  Dzięki nowej konstrukcji "plastra miodu" materiał jest o 20% bardziej wytrzymały na ściskanie w porównaniu z wcześniejszym modelem.

Przy zastosowaniu dodatkowej nakładki istnieje możliwość zwiększenia wysokości korpusu, co z kolei ułatwia dostosowanie wielkości naświetla do indywidualnych potrzeb klienta. Doświetlacz jest łatwy i szybki w montażu. Takie rozwiązanie zapewnia idealne dopasowanie naświetla do kształtu terenu, unikając przy tym niepotrzebnego wiercenia podczas montażu. Dodatkowym atutem jest również wyjątkowo estetyczny efekt wizualny.

CHARAKTERYSTYKA NAŚWIETLA MULTINORM

  • korpus wykonany z wysokiej jakości kompozytu poliestrowo-szklanego (PS)
  • konstrukcja "plastra miodu" zwiększa o 20% wytrzymałość na ściskanie
  • przeznaczone do ruchu pieszego
  • głębokość doświetla - 40 cm
  • idealnie gładka powierzchnia korpusu zapewnia maksymalne doświetlenie pomieszczeń piwnicznych np.garaży, magazynów, spiżarni
  • posiada otwór odpływowy w dnie
  • ruszt wykonany ze stali ocynkowanej dostępny: ruszt siatkowy, kratowy 30/30, kratowy 30/10, ruszt PKW (przejezdny dla samochodów) - aukcja dotyczy doświetlacza z rusztem kratowym 30/30
  • możliwość zwiększenia wysokości doświetla przy zastosowaniu nadstawki w zakresie 8-33 cm
  • możliwość zakupienia zestawu montażowego do ścian bez izolacji oraz z izolacją termiczną lub zestawu do montażu wodoszczelnego (AQUA) - za dopłatą
  • połączenie odpływowe (za dopłatą)
  • materiał naświetla odporny na odkształcenia (100% mrozoodporny)

ZALETY NAŚWIETLA MULTINORM

  • zapewnia idealne doświetlenie i dopowietrzenie pomieszczeń piwnicznych
  • stabilne, lekkie i łatwe w montażu
  • odporne na odkształcenia i uszkodzenia mechaniczne, czynniki atmosferyczne i żrące środki chemiczne
  • wyjątkowa żywotność, nie występuje zjawisko zmęczenia materiału
  • trwałe rozwiązanie nie wymagające konserwacji odporne na związki chemiczne i czynniki atmosferyczne (w 100% mrozoodporny)
  • łatwe w utrzymaniu czystości doskonale nadaje się do montowania w terenach pochyłych oraz w gruntach ciężkich i zagęszczonych tj. gliny
  • wzmocniona konstrukcja
  • wodoodporne przy zastosowaniu odpowiedniego zestawu montażowego (AQUA) - za dopłatą

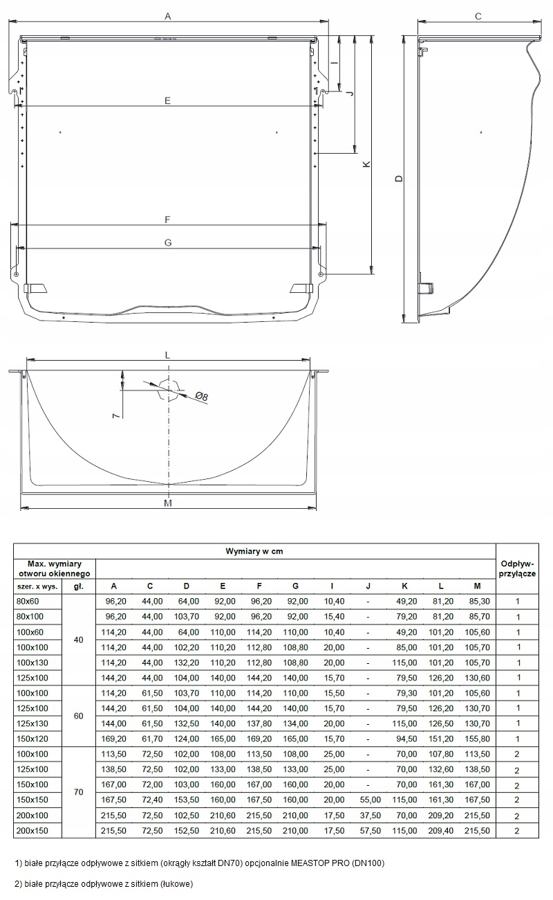
Doświetlacze dostępne są w różnych rozmiarach, w szerokości od 80 do 150 cm (model XL do 200 cm), wysokości od 60 do 130 cm (model XL do 150 cm)  i głębokości od 40 do 60 cm (model XL - 70 cm).

W skład zestawu wchodzi:

  • jednoczęściowy korpus
  • ruszt ocynkowany kratowy 30/30

Zestaw montażowy za dopłatą (dostępny na naszej aukcji).

Doświetlacz piwniczny MEA MULTINORM 100x60x40
Doświetlacz piwniczny MEA MULTINORM 100x60x40 Kod producenta 10864510

Doświetlacz:

  • S - szerokość: 100 cm
  • W - wysokość: 60 cm
  • G - głębokość: 40 cm

Do naświetla MULTINORM można zastosować nakładki - regulowane w zakresie od 8 do 33 cm. Przy montażu nadstawki należy pamiętać o konieczności zastosowania ramy wzmacniającej.

Do montażu każdej nakładki należy użyć uniwersalnego  zestawu montażowego. Przy stosowaniu nakładek na doświetlacz używanie ramek wzmacniających jest dodatkową stabilizacją dla konstrukcji. Podczas montażu w trudnych warunkach gruntowych, przy montażu w nachyleniu oraz więcej niż 1 nakładki stosowanie ram wzmacniających jest konieczne.

  • S - szerokość: 100 cm
  • W - wysokość: 35 cm
  • G - głębokość: 40 cm

Maksymalna dopuszczalna ilość nadstawek doświetlacza:

  • dla standardowych doświetlaczy o szerokości do 125 cm - 3 nadstawki
Alt

SPECYFIKACJA

Wymiary : 80x60x40 - 200x150x70 (aukcja dot. rozm. 100x60x40)

Rodzaj rusztu : Ruszt ocynkowany kratowy 30/30

Jednostka miary : Kpl.

Producent : MEA

Przyłącze do kanalizacji (końcówka odwadniająca) : Tak (za dopłatą)

Alt
Doświetlacz piwniczny MEA MULTINORM 100x60x40 Marka MEA
Doświetlacz piwniczny MEA MULTINORM 100x60x40 Rodzaj inny

Гарантии

  • Гарантии

    Мы работаем по договору оферты и предоставляем все необходимые документы.

  • Лёгкий возврат

    Если товар не подошёл или не соответсвует описанию, мы поможем вернуть его.

  • Безопасная оплата

    Банковской картой, электронными деньгами, наличными в офисе или на расчётный счёт.

Отзывы о товаре

Рейтинг товара 0 / 5

0 отзывов

Russian English Polish