Воздухозаборник 1500 м3/ч - ПРОИЗВОДИТЕЛЬ - АКЦИЯ!
Товар
- 0 раз купили
- 5 оценка
- 30 осталось
- 1 отзыв
Доставка
Характеристики
Описание
Produkujemy profesjonalne zawory [wloty] powietrza przeznaczone do budynków inwentarskich. Wloty wykonane są z wysokiej jakości sztywnej pianki poliuretanowej, pozwoliło to uzyskać:
- odporność na środowiska agresywne [chemikalia, grzyby, gazy]
- bardzo dobre właściwości izolacyjne
- gładkie i twarde powierzchnie pozwalające na łatwe utrzymanie czystości
- niską wagę klap co ułatwia sterowanie
- surowiec posiada atest higieniczny PZH
Wloty posiadają kołnierz natynkowy. Możliwość wykonania w wersji samoczynnie zamykającej lub samoczynnie otwierającej. Konstrukcja umożliwia sterowanie ręczne lub włączenie do systemów automatycznych.
Wloty wyposażone są w uszczelki gwarantujące szczelność, dodatkowo zastosowano siatkę zabezpieczającą przed dostawaniem się do wewnątrz szkodników
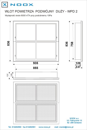
Aukcja dotyczy 1 sztuki wlotu o wymiarach 648 mm x 271 mm i głębokości 120 mm, wlot dodatkowo posiada kołnierz natynkowy. Wydajność wlotu przy podciśnieniu 10 Pa wynosi około 1500 m3/h
Produkujemy wloty w wielu wariantach:
---> wlot mały podwójny 3000 m3/h o wymiarach: 647 mm x 542 mm
---> wlot mały potrójny 4500 m3/h o wymiarach: 647 mm x 813 mm
---> wlot duży 3000 m3/h o wymiarach: 855 mm x 379 mm
---> wlot duży podwójny 6000 m3/h o wymiarach: 855 mm x 758 mm
Гарантии
- Гарантии- Мы работаем по договору оферты и предоставляем все необходимые документы. 
- Лёгкий возврат- Если товар не подошёл или не соответсвует описанию, мы поможем вернуть его. 
- Безопасная оплата- Банковской картой, электронными деньгами, наличными в офисе или на расчётный счёт. 
