Rettbox Воздушная розетка 230В + воздух Спасение
Товар
- 0 раз купили
- 0 оценка
- 3 осталось
- 0 отзывов
Доставка
Характеристики
Описание
Rettbox Air zasilanie na postoju samochodów prądem 230V i sprężonym powietrzem
System szybkiego wypinania zasilania do samochodów Strażackich
Rettbox Air gniazdo ze skrzynką
Złącza Rettbox Air stosowane w samochodach ratownictwa pozwalają na utrzymanie samochodów ratownictwa w stałej gotowości do natychmiastowego wyjazdu.
Po przekręceniu kluczyka w stacyjce wtyczka się sama wypina z gniazda oraz gniazdo się samo zamyka i samochód jest gotowy do natychmiastowego odjazdu.
Podstawowe cechy:
- automatyczne urządzenie rozłączające dla zapewnienia natychmiastowej gotowości do pracy
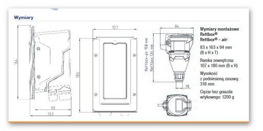
- Rettbox® -air: zasilanie prądem i powietrzem
- styki z dociskiem czołowym
- elektryczny mechanizm wyrzucający z elektromagnesem 12V lub 24V
- samozamykająca się zasuwa wtyczki i pokrywa gniazda
- zwarta obudowa przygotowana do podłączenia kabli
- Rettbox® spełnia wymagania normy DIN 14679 dla złącz ładowania akumulatorów rozruchowych pojazdów straży pożarnych
Zastosowania:
Pojazdy straży pożarnej i ratownicze, obiekty komunalne,urządzenia mobilne, środki transportu, ogrzewane lub chłodzone wózki żywności w stołówkach, szpitalach, przemyśle spożywczym
Szukasz innych części do złączy Rettbox i Rettbox Air
Гарантии
- Гарантии- Мы работаем по договору оферты и предоставляем все необходимые документы. 
- Лёгкий возврат- Если товар не подошёл или не соответсвует описанию, мы поможем вернуть его. 
- Безопасная оплата- Банковской картой, электронными деньгами, наличными в офисе или на расчётный счёт. 
