Газовая дверь из полированной нержавеющей стали 60х60 см.

Товар

12 081  ₽
Газовая дверь из полированной нержавеющей стали 60х60 см.

Доставка

  • Почта России

    от 990 ₽

  • Курьерская доставка EMS

    от 1290 ₽

Характеристики

Артикул
7430488879
Состояние
Новый
Wysokość
600 mm
Szerokość
600 mm
Głębokość
30 mm
Informacje dodatkowe
nierdzewna

Описание

Alt

Drzwiczki gazowe nierdzewne szlifowane 60x60 cm

o symbolu: 60603NS

Drzwiczki gazowe nierdzewne szlifowane 60x60 cm

ZASTOSOWANIE

Małe obiekty wolnostojące - domy jednorodzinne, małe budynki użyteczności publicznej, zakłady usługowe, warsztaty, etc.

Doskonale nadają się zarówno do montażu wewnątrz pomieszczeń, jak i na zewnątrz.

Niepowtarzalny wygląd stali nierdzewnej sprawia, że drzwiczki gazowe wyglądają bardzo nowocześnie i doskonale prezentują się na każdym budynku.

Po montażu należy pamiętać o zdjęciu folii ochronnej!

DANE TECHNICZNE

  • rodzaj materiału: blacha ze stali nierdzewnej szlifowana typ 1.4301 (304)
  • grubość blachy: 1 mm
  • kolor: srebrny szlifowany ("matowe")
  • sposób otwarcia: funkcjonalny i wygodny zamek gazowy z kluczem motylkowym w komplecie naklejka "GAZ" do samodzielnego przyklejenia
  • wentylacja: otwory wentylacyjne, ułatwiające przewietrzenie wnętrza (ilość otworów uzależniona od wymiarów drzwiczek)
  • wyposażone w wąsy montażowe
  • zabezpieczone folią ochronną
  • możliwość wykonania okna rewizyjnego PCV przeznaczonego do odczytu licznika (za dopłatą 15 zł)
  • produkt posiada deklarację zgodności oraz atest na blachę nierdzewną

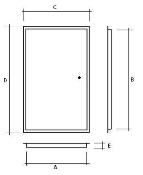
WYMIARY

  • A = 60 cm
  • B = 60 cm
  • C = 68 cm
  • D = 68 cm
  • E = 3 cm
Alt
Drzwiczki gazowe nierdzewne szlifowane 60x60 cm
Drzwiczki gazowe nierdzewne szlifowane 60x60 cm Kod producenta 60603NS
Drzwiczki gazowe nierdzewne szlifowane 60x60 cm Marka SystemHome
Drzwiczki gazowe nierdzewne szlifowane 60x60 cm Szerokość 600 mm
Drzwiczki gazowe nierdzewne szlifowane 60x60 cm Informacje dodatkowe nierdzewna zamykana na kluczyk z otworami wentylacyjnymi
Drzwiczki gazowe nierdzewne szlifowane 60x60 cm Wysokość 600 mm
Drzwiczki gazowe nierdzewne szlifowane 60x60 cm Głębokość 30 mm
Alt

Гарантии

  • Гарантии

    Мы работаем по договору оферты и предоставляем все необходимые документы.

  • Лёгкий возврат

    Если товар не подошёл или не соответсвует описанию, мы поможем вернуть его.

  • Безопасная оплата

    Банковской картой, электронными деньгами, наличными в офисе или на расчётный счёт.

Отзывы о товаре

Рейтинг товара 4.89 / 5

9 отзывов

Russian English Polish