Rekuperator podwieszany Domekt CF 250 F 295 m3/h

Товар

455 445  ₽
Пошлина ≈56 490 ₽ не входит в цену.
Rekuperator podwieszany Domekt CF 250 F 295 m3/h

Доставка

  • Почта России

    Превышен вес Почта (Превышен вес)

  • Курьерская доставка EMS

    Превышен вес EMS (Превышен вес)

Характеристики

Артикул
7548028558
Состояние
Новый
Marka
Komfovent
Rodzaj
rekuperator
Waga produktu z opakowaniem jednostkowym
52 kg
Kod producenta
Domekt CF 250 F
Zakres klas efektywności energetycznej
A+ - G
Klasa efektywności energetycznej
A

Описание

KOD PRODUKTU: DOMEKT CF 250 F C6

Rekuperator podwieszany Komfovent DOMEKT CF 250 F

Przedmiotem aukcji jest rekuperator DOMEKT CF produkcji KOMFOVENT o parametrach podanych w tytule aukcji.

Zalety central serii Domekt CF

Centrale wentylacyjne z przeciwprądowym wymiennikiem ciepła.

Oszczędność energii cieplnej

W procesie obróbki powietrza następuje odzysk ciepła z powietrza wywiewanego, które jest wykorzystywane do ogrzewania powietrza nawiewanego.

Efektywna i długoletnia eksploatacja

Brak ruchomych elementów wpływa na efektywną wymianę ciepła i zwiększa żywotność urządzenia.

W pełni odseparowane strumienie powietrza

Strumienie powietrza doprowadzanego i wywiewanego są całkowicie od siebie oddzielone, dlatego bez żadnych obaw można wykorzystać ciepło odzyskane z powietrza wyciąganego.

Niski poziom hałasu

W centralach wentylacyjnych Domekt CF montowane są wentylatory cichobieżne i izolacja wygłuszająca, które zapewniają cichą pracę jednostek.

Rekuperator podwieszany Domekt CF 250 F 295 m3/h
Rekuperator podwieszany Domekt CF 250 F 295 m3/h Kod producenta Domekt CF 250 F

Wysokosprawny przeciwprądowy wymiennik ciepła

Wymiennik skonstruowany jest w całości z polistyrenu – od płytek po obudowę. Zastosowano wyłącznie bezrozpuszczalnikowe kleje elastyczne.

  • To właśnie rozwiązanie projektowe leży u podstaw znakomitej sprawności cieplnej wymiennika.
  • Trójkątne kanały w wymienniku ciepła rozmieszczone zostały w taki sposób, że każdy z nich jest otoczony przez równolegle biegnące kanały, w których powietrze przepływa w przeciwnym kierunku.
  • Każdy kanał świeżego powietrza jest otoczony trzema kanałami, przez które wywiewane jest zużyte ciepłe powietrze, i odwrotnie, każdy kanał odprowadzający zużyte powietrze otoczony jest trzema kanałami nawiewającymi powietrze świeże. Uzyskano w ten sposób maksymalną powierzchnię wymiany ciepła, umożliwiającą efektywny odzysk i ponowne wykorzystanie ciepła.

Ochrona przed przemarzaniem

Przy bardzo niskich temperaturach zewnętrznych może dochodzić do przemarzania na końcu kanału wywiewnego wymiennika ciepła, jeśli temperatura powietrza wywiewanego spadnie poniżej 4°C. Aby nie dopuścić do zamarzania wymiennika, w zagrożonej strefie zamontowany został czujnik sygnalizujący temperaturę automatyce urządzenia. Jeśli w określonym czasie temperatura nie podnosi się, następuje otwarcie klapy układu obejściowego i skierowanie do niego strumienia powietrza zewnętrznego. W ten sposób przez wymiennik ciepła przepływaćbędzie wyłącznie ciepłe powietrze wywiewane, które rozmrozi przemarzniętą strefę. Przy temperaturze zewnętrznej niższej niż -4ºC zaleca się stosowanie kanałowych nagrzewnic wstępnych.

Automatyka

Rekuperator posiada zintegrowaną automatykę C6, dodatkowo należy dokupić Panel sterowania C6.1:

  • Dotykowy, kolorowy ekran LED
  • Wskazanie parametrów pracy
  • Pełna modyfikacja trybów pracy urządzeniaz poziomu panelu
Rekuperator podwieszany Domekt CF 250 F 295 m3/h Klasa efektywności energetycznej A
Rekuperator podwieszany Domekt CF 250 F 295 m3/h Waga produktu z opakowaniem jednostkowym 52 kg

lub C6.2:

  • Nowoczesny panel z dotykowymi przyciskami
  • Fabrycznie zaprogramowane ustawienia
  • Wybór trybu pracy z poziomu panelu

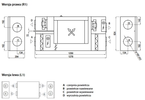
Dane techniczne:

Strumień powietrza (m3/h): 295

Sprawność temperaturowa odzysku ciepła (%): 86

Moc nagrzewnicy elektrycznej (kW): 0,5

Rekuperator podwieszany Domekt CF 250 F 295 m3/h Marka Komfovent

Wymiary i charakterystyki pracy:

Rekuperator podwieszany Domekt CF 250 F 295 m3/h Zakres klas efektywności energetycznej A+ - G
Rekuperator podwieszany Domekt CF 250 F 295 m3/h Rodzaj rekuperator

Nasza oferta:

  • Na naszych aukcjach posiadamy wszystkie materiały montażowe, instalacyjne i urządzenia 
  • Potrzebujesz produktu o innych wariantach i właściwościach? Prawdopodobnie mamy go na innych aukcjach
  • Obsługujemy kompleksowo całe inwestycje, dostarczamy materiały dla instalatorów i wykonawców
  • Oprócz sprzedaży zapewniamy również montaż systemów wentylacji, rekuperacji, klimatyzacji, pomp ciepła, odkurzaczy centralnych, DGP i kominków

Dlaczego OXYWENT_pl?

  • Znamy się na produktach które sprzedajemy, doradzamy
  • Dbamy o dobry kontakt na każdym etapie realizacji zamówienia
  • Oferujemy produkty najwyższej jakości po przystępnych cenach
  • Nasza firma istnieje na rynku od 2008 roku
  • Na naszych kontach Allegro znajdują się opinie wielu tysięcy zadowolonych klientów

Montaż urządzeń i instalacji

OXYWENT oprócz działalności handlowej zajmuje się również projektowaniem i instalacją wentylacji, rekuperacji oraz klimatyzacji. Prowadzimy realizacje w domach jednorodzinnych oraz obiektach usługowych i przemysłowych. Istnieje zatem możliwość sprzedaży naszych produktów wraz z montażem.

Dla osób fizycznych spełniających wymogi określone w art. 41 ust. 12b ustawy o VAT proponujemy montaż na preferencyjnej stawce VAT 8%

Гарантии

  • Гарантии

    Мы работаем по договору оферты и предоставляем все необходимые документы.

  • Лёгкий возврат

    Если товар не подошёл или не соответсвует описанию, мы поможем вернуть его.

  • Безопасная оплата

    Банковской картой, электронными деньгами, наличными в офисе или на расчётный счёт.

Отзывы о товаре

Рейтинг товара 0 / 5

0 отзывов

Russian English Polish